Teren intravilan de vanzare in Tocile 865 mp pretabil casa vacanta sau investitie
Phone 0785022279
Romanian Flag English Flag German Flag
ATUM Imobiliare
Wishlist
0
  • Vânzări
    • Apartamente
      • Toate Apartamentele
      • Garsoniere
      • Apartamente 2 camere
      • Apartamente 3 camere
      • Apartamente 4+ camere
    • Case/vile
    • Spații birouri
    • Spații comerciale
    • Spații industriale
    • Terenuri
    • Hoteluri/pensiuni
  • Închirieri
    • Apartamente
      • Toate Apartamente
      • Garsoniere
      • Apartamente 2 camere
      • Apartamente 3 camere
      • Apartamente 4+ camere
    • Case/vile
    • Spații birouri
    • Spații comerciale
    • Spații industriale
    • Terenuri
    • Hoteluri/pensiuni
  • Ansambluri
  • Servicii
    • Vanzare imobil
    • Inchiriere imobil
    • Evaluare proprietate
    • Asistenta juridica
    • Asigurari locuinta
    • Consultanta financiar bancara
  • Utile
    • Despre noi
    • Echipa
    • Cariera
    • Blog
    • Parerea clientilor

    • Calculator taxe Notariale
    • Calculator Taxa Impozit Chirie

    • Adaugă oferta ta
    • Adaugă cererea ta
  • Contact
  • Wishlist
    0

Teren intravilan de vanzare in Tocile 865 mp pretabil casa vacanta sau investitie

56,000 EUR

  • Atum Imobiliare
  • Terenuri de vanzare
  • Terenuri de vanzare Sadu
  • Terenuri de vanzare Tocile
  • Teren intravilan de vanzare in Tocile 865 mp pretabil casa vacanta sau investitie
  • Tocile, Sadu
  • |
  • ID: 3289
  • WhatsApp Facebook Twitter LinkedIn Email

Descriere

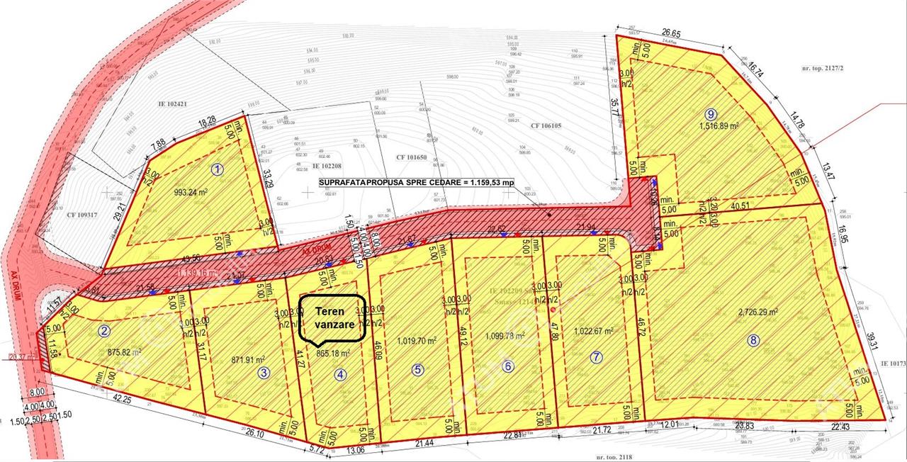
Va propun spre vanzare un teren intravilan cu o suprafata generoasa de 865 mp, situat in localitatea Tocile, una dintre cele mai cautate locatii pentru dezvoltarea de case de vacanta si pensiuni turistice. Proprietatea este parte dintr-un ansamblu de 9 parcele, toate avand deschidere la acelasi drum de acces privat cu latimea de 8 metri, drum prevazut in documentatia PUZ aferenta zonei.
Zona se remarca prin liniste, peisaje naturale si un cadru ideal pentru cei care isi doresc o locuinta intr-un mediu curat, aerisit si neaglomerat, dar totodata aflat la doar cateva minute de municipiul Sibiu.
Conform Regulamentului Local de Urbanism aferent PUZ-ului se pot realiza constructii cu functiuni turistice si de recreere, precum case de vacanta, pensiuni, bungalow-uri si anexe aferente acestora, cu respectarea urmatorilor indici urbanistici si conditii tehnice:
Regim de inaltime admis: P+E (inaltime maxima la coama 11 m, streasina 7 m)
POT maxim: 35%
CUT maxim: 0.7
Retrageri fata de limite: minim 5–7 m la strada, minim 3 m lateral/spate
Suprafata minima a unei parcele construibile: 350 mp
Utilizari admise: case de vacanta, pensiuni turistice, bungalow-uri, servicii turistice, anexe
Obligativitatea amenajarii de spatii verzi minime: 30% din teren
Toate locurile de parcare trebuie realizate pe parcela proprie
Drumul de acces este inclus in proiectul de dezmembrare, are 8 metri latime si urmeaza sa fie notat in cartea funciara ca drum cu servitute de trecere pentru toate parcelele din ansamblu, conform cerintelor urbanistice. Utilitatile se afla la aproximativ 200 de metri de teren, putand fi extinse in mod organizat si eficient, fie individual, fie prin asociere cu ceilalti proprietari din zona. Documentatia urbanistica mentioneaza racordarea la reteaua electrica si de apa-canal existenta.
Terenul are o forma regulata, este bine proportionat si ofera posibilitatea configurarii optime a unei constructii, beneficiind de o deschidere generoasa si de o pozitionare excelenta fata de drum. Zona este in plina dezvoltare, cu potential mare atat pentru investitii turistice, cat si pentru constructia unei locuinte permanente intr-o zona retrasa si ferita de trafic.
Valoarea terenului est de 56.000 euro, negociabil.

Caracteristici

  • Check Zona: Tocile
  • Check Suprafață Teren: 865 mp
  • Check Front: 21 ml / nr fronturi 1
  • Check Fronturi: 1
  • Check Localizare: Intravilan
  • Check Deschidere: 21 ml
  • Check Tip teren: Construibil
  • Check Acces teren: Auto
  • Check Străzi: De pamant
  • Check Pretabil: Case / vile

Alte Informații

  • CheckAcces Teren: Auto
  • CheckAcces Utilitati: Pe Teren
  • CheckAlte Caracteristici Teren: Oportunitate de investitie, Posibilitate extindere
  • CheckStrazi Teren: De pamant
  • CheckTeren Pretabil: Case / vile
  • CheckUrbanism: PUZ
  • CheckUtilitati: Curent, Apa, Canalizare, Internet

Locatie

Tocile, Sadu
Marian Floricu

Marian Floricu

Director General
  • Telefon: 0785022279
  • Email:marian.floricu@atumimobiliare.ro

Contact Agent

Cod securitate

 Prin completarea prezentului formular, declar că am citit politica de confidențialitate și sunt de acord cu prelucrarea datelor personale.

Oferte Similare

Teren intravilan de vanzare in Tocile 871 mp pretabil casa vacanta sau investitie
vanzare

Teren intravilan de vanzare in Tocile 871 mp pretabil casa vacanta sau investitie

Tocile, Sadu

56.600 EUR

Suprafata871 m2
Teren intravilan de vanzare in Tocile 2726 mp pretabil casa vacanta sau investitie
vanzare
Comision 0%

Teren intravilan de vanzare in Tocile 2726 mp pretabil casa vacanta sau investitie

Tocile, Sadu

169.000 EUR

Suprafata2726 m2
Atum Imobiliare

Agentie

  • Cumpara
  • Vinde
  • Inchiriaza

Despre noi

  • Despre noi
  • Servicii
  • Echipa
  • Contact

Legal

  • Termeni si Conditii
  • Despre cookies
  • Calculator taxe notariale
  • Calculator taxe impozit chirie

Follow us

Facebook Instagram Youtube TikTok LinkedIn

ATUM IMOBILIARE MR

  • Adresa: Strada Rahovei, Nr. 10, Sibiu
  • 0785 022 279
  • contact@atumimobiliare.ro

© Copyright 2025 Atum Imobiliare. O solutie Soft Imobiliar si VDI.ro - agentii imobiliare Sibiu   |    ANCPI   |   GDPR

Confirmare

Oferta a fost adaugata in portofoliu! Click aici pentru a vedea ofertele din portofoliu